Application Type
Industrial Design
Application SubType
Design (Single)
(10) Registration Number and Date
0022013 2013.10.24
Status
INACTIVE ( IP right ceased)
(18) Expiration Date
(20) Filing Number and Date
BN/D/2013/0002 2013.04.30
(400) Publication Number and Date
0022013
2013.10.24
(30) Priority Details
(51/52) Classification
(72) Designer
(74) Representative
(EN) Ahmad Isa & Partners : Unit Nos. 404A-410A, 4th Floor, Wisma Jaya, Jalan Pemancha
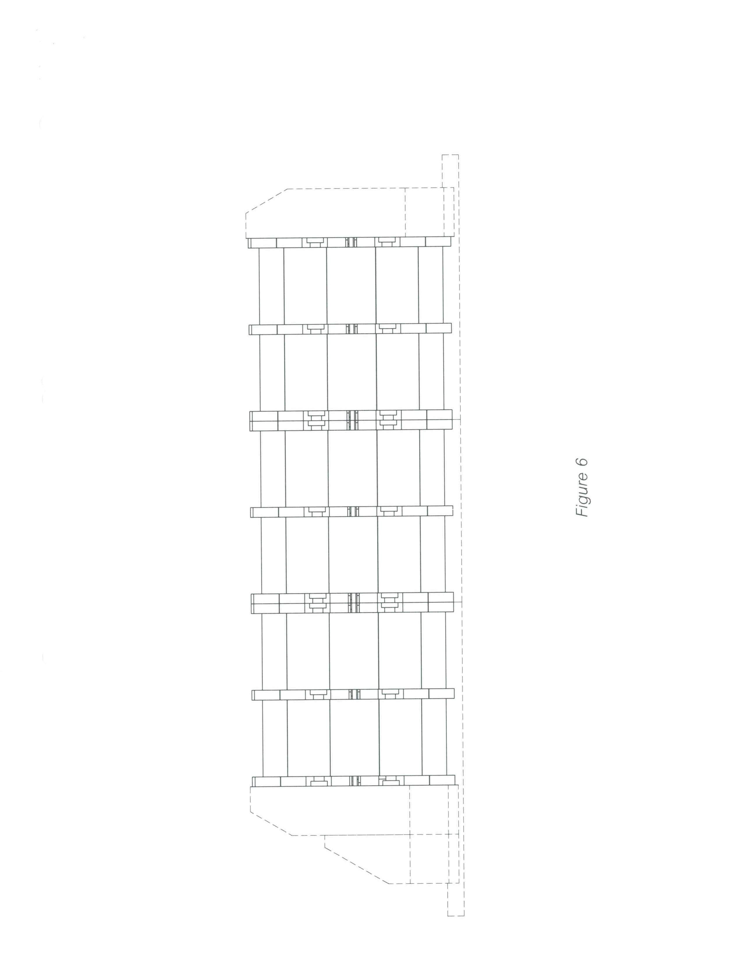
(54) Design Title
Description
(EN) HEAT EXCHANGER
(57) Design Novelty Statement
(EN) THE FEATURES OF THE DESIGN FOR WHICH NOVELTY IS CLAIMED RESIDE IN THE SHAPE AND CONFIGURATION OF THE ARTICLE AS SHOWN IN THE REPRESENTATIONS
(56) Design Claims
${repeating.template.CLNB}
ClaimDescription
(70) License Details
Event NameDateLink
Application filed2013-04-30
Document published2013-10-24
IP right granted2013-10-24
IP right ceased2018-04-30